HOME > 物件情報 > 落合 > 仲26-01富里中古
| 価格 |
地目/面積 | 用途地域 | 取引の形態 |
|---|---|---|---|
|
850 万円 |
宅地/304.32㎡(92坪) | 第1種低層住居専用地域 | 仲介 |
| 物件タイプ | 住宅 | ||
| 物件種類 | 中古 | ||
| 所在 | 諏訪郡富士見町落合(冨里) | ||
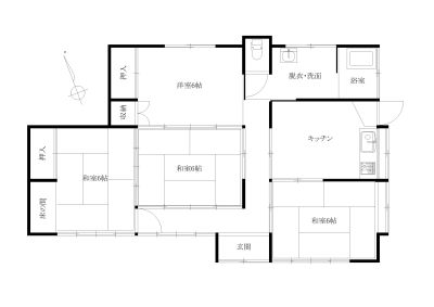
| 建物 | 木造合金メッキ鋼板葺 平屋建 73.78㎡ 昭和53年新築 | ||
| 土地権利 | 所有権 | ||
| 交通 | JR富士見駅 800m | ||
| 建ぺい率 | 50% | ||
| 容積率 | 80% | ||
| 電気 | 中部電力 | ||
| 上水道 | 公営水道 | ||
| 下水道 | 公共下水 | ||
| 仲介手数料 | 346,500円(税込) | ||
JR富士見駅まで800m(徒歩10分)の中古住宅。
築年数は古いですが、まだまだ使用できる建物です。
関連タグ:土地・建物

